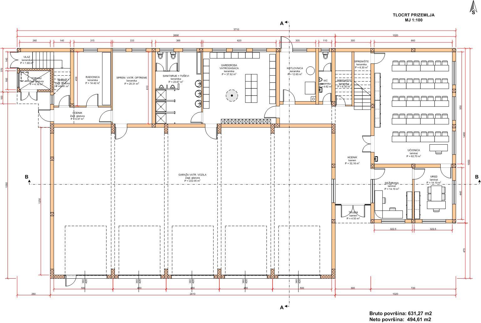
Lepoglava bi za dvije godine trebala postati moderno vatrogasno središte regije, sudeći prema najnovijoj investiciji u izgradnju budućega vatrogasnog doma.
Polovicom rujna u Grad Lepoglavu stigla je Odluka o financiranju projektnog prijedloga izgradnje vatrogasnog doma s 1.788.546,13 eura bespovratnih sredstava, što predstavlja najveći mogući iznos sufinanciranja prihvatljivih troškova projekta ukupnog iznosa od 2.104.171,92 eura.
Riječ je o projektu u sklopu Poziva za dodjelu bespovratnih sredstava „Jačanje kapaciteta za protupožarnu zaštitu na brdsko-planinskim i potpomognutim područjima – faza 2” u okviru Programa „Konkurentnost i kohezija 2021.-2027.”
Ova sjajna vijest predstavlja nastavak značajnih investicija u vatrogastvo na području grada. Nakon nedavno završene III. faze uređenja doma u Kamenici i energetske obnove Vatrogasnog doma na Višnjici, navedeni kapitalni projekt namijenjen je Dobrovoljnom vatrogasnom društvu Lepoglava.
Gradonačelnik Lepoglave, Željko Šoštarić, naglasio je kako je riječ o izuzetno značajnoj investiciji te istaknuo kako će grad napokon dobiti vatrogasni dom i prostorije kakve zaslužuje.

-Predstoji sada potpisivanje Ugovora i raspisivanje javne nabave za odabir izvođača radova, a kada iduće godine počnu radovi, budući novi dom lepoglavskih vatrogasaca trebao bi biti dovršen do kraja 2027. godine. 85% bespovratnih sredstava ukupnog iznosa financira fond, dok će preostalih 15% ili 316 tisuća eura biti pokriveno proračunskim sredstvima-naglasio je gradonačelnik Šoštarić, zahvalivši svima koji su radili na ovom projektu.



