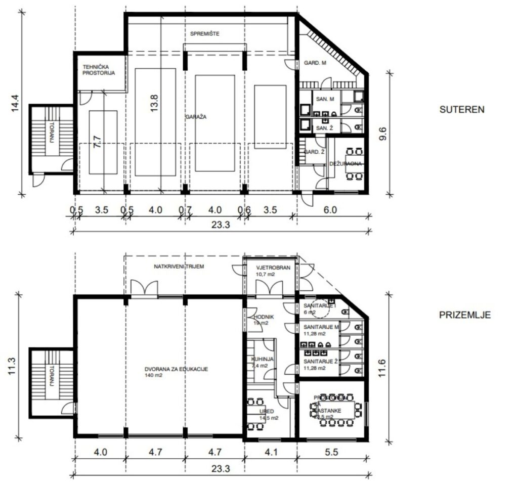
Godina 2025. ostat će zapamćena kao razdoblje važnih iskoraka za DVD Đurmanec i Općinu Đurmanec, a među najvećima je početak izgradnje novog vatrogasnog doma – projekta koji generacije stanovnika očekuju desetljećima.
Ovaj moderni objekt donijet će znatno višu razinu sigurnosti, jače zajedništvo i bolje uvjete za rad onih koji svakodnevno bdiju nad zajednicom.
Novi dom neće biti tek još jedna građevina, već prostor posvećen ljudima koji su uvijek spremni stati na prvu crtu – članovima DVD-a Đurmanec. Riječ je o ženama i muškarcima koji svojim nesebičnim radom štite živote, imovinu i uspomene svojih sugrađana, često i kada drugi spavaju ili bježe od opasnosti.
Projekt se provodi uz snažnu potporu Europskog fonda za regionalni razvoj, uz suradnju Općine Đurmanec i DVD-a Đurmanec. Njime se postavljaju temelji dugoročne sigurnosti i ponosa koji godinama oblikuju identitet ove sredine.
Vrijednost projekta iznosi 1.500.434,62 eura, od čega je osigurano 1.275.369,42 eura bespovratnih sredstava, što omogućuje stabilnu i kvalitetnu provedbu svih planiranih aktivnosti. Projekt se realizira u razdoblju od 26. svibnja 2023. do 26. listopada 2027. godine, tijekom kojeg će se postepeno graditi i opremati novi prostor namijenjen vatrogascima i cijeloj zajednici.
Ovaj zahvat još je jedan dokaz koliko se može postići kada zajednica diše kao jedno. Đurmanec tako potvrđuje svoju predanost stvaranju bolje, toplije i sigurnije budućnosti za sadašnje i buduće generacije.




